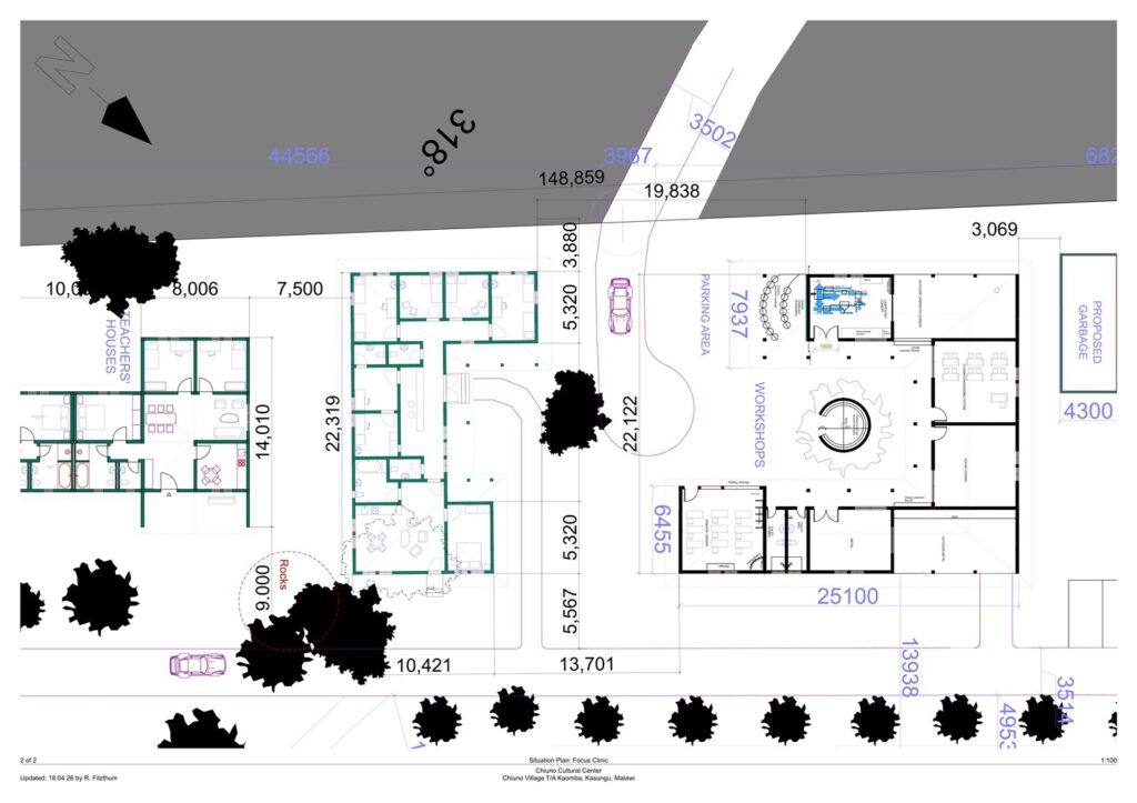
Ausbildung + Werkstätten
Am 1. Mai 2026 geht es los: wir bauen die Ausbildungswerkstätten. Nach einer Ausschreibung haben wir zusammen mit der Chiuno-NGO die Emmanuel General Construction als Bauunternehmer aus Kasungu beauftragt.
Fünf Werkstätten mit auch Außenbereichen bilden ein kleines Zentrum für handwerkliche Betätigung und Zusammenwirkung. Ein Baum steht in der Mitte und wächst dort als Zeichen des Fortschritts und der Verbundenheit. Unsere Werkstätten wurden von Rana Moumneh, MBL, BEng geplant.



